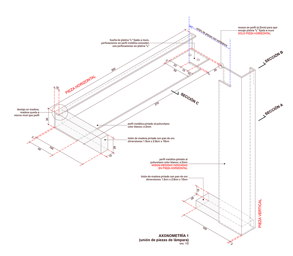
ZYX Lámpara de 30 x 30 x 10 cm, en plancha de hierro de 1 mm de espesor, pintada con laca urethana blanca mate, madera, pan de oro y cinta LED.
Este objeto se relaciona íntimamente con el espacio arquitectónico, poniendo en relación dinámica, luz y espacio.
Colocada en el vértice entre un muro y un cielo raso, pone en evidencia las tres coordenadas espaciales: X, Y, Z. Puede ser instalado en versión aplica (contra una pared) o en versión lámpara. La lámpara ZYX es un objeto que fue diseñado y fabricado especialmente para la subasta del Museo de Arte de Lima (MALI).
Autores: Sandra Barclay, Jean Pierre Crousse


País: Perú
Estudio / proyecto: Barclay&Crousse
Fuente: BID16
